Courtesy of Dawn Heisler of RE/MAX Real Estate

5032 52 Street, Land for sale in Warburg Warburg , Alberta , T0C 2T0

 MLS® # E4460085

Sign up to View

Days on Market

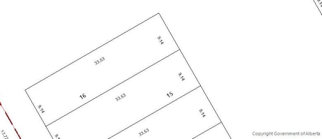
30' X 110' corner lot on main street in Warburg ready to develop. Zoned C-1 offers a wide variety of uses in retail, business and public service including professional services, pharmacy, food and beverage, daycare, laundromat, gym/health club, bakery, light equipment repair etc. Development permit required. Warburg is centrally located between Leduc, Nisku, Drayton Valley, Capital Power/Genesee and Stony Plain. Just 45 minutes to the International Airport.

Essential Information

  • MLS® #
    E4460085
  • Property Type
    Land
  • MLS® #
    E4460085
  • Property Type
    Land
  • MLS® #
    E4460085
  • Property Type
    Land

Community Information

  • Area
    Leduc County
  • Neighbourhood/Community
    Warburg
  • Postal Code
    T0C 2T0
  • Area
    Leduc County
  • Neighbourhood/Community
    Warburg
  • Postal Code
    T0C 2T0
  • Area
    Leduc County
  • Neighbourhood/Community
    Warburg
  • Postal Code
    T0C 2T0

Additional Details

  • Property Class
    Land Commercial
  • Last Updated
    8/2/2025 17:42
  • Property Class
    Land Commercial
  • Last Updated
    8/2/2025 17:42
  • Property Class
    Land Commercial
  • Last Updated
    8/2/2025 17:42

$15,000

5032 52 Street

Schedule Tour
Contact Agent

$69/month
Est. Monthly Payment
$
$
%
Learn More

Mortgage values are calculated by Redman Technologies Inc based on values provided in the REALTOR® Association of Edmonton listing data feed.