Courtesy of Karen Chayka of NAI Commercial Real Estate Inc

11212 178 Street NW, Commercial for sale in Edmiston Industrial Edmonton , Alberta , T5S 1P2

 MLS® # E4461125

Sign up to View

Days on Market

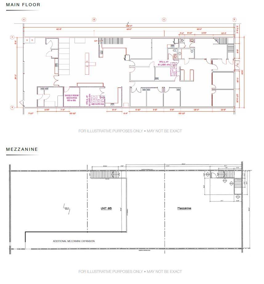
RARE Opportunity for an Owner/User. Immediately available. Former emergency veterinarian clinic. 4,750 sq.ft. main floor office/showroom/warehouse. 2,300 sq.ft. undeveloped mezzanine. Two (2) grade overhead doors. Exposure to 178 Street. Easy to show this quality business condominium!

Essential Information

  • MLS® #
    E4461125
  • Year Built
    2007
  • Property Type
    Commercial Sale
  • MLS® #
    E4461125
  • Year Built
    2007
  • Property Type
    Commercial Sale
  • MLS® #
    E4461125
  • Year Built
    2007
  • Property Type
    Commercial Sale

Community Information

  • Area
    Edmonton
  • Neighbourhood/Community
    Edmiston Industrial
  • Postal Code
    T5S 1P2
  • Area
    Edmonton
  • Neighbourhood/Community
    Edmiston Industrial
  • Postal Code
    T5S 1P2
  • Area
    Edmonton
  • Neighbourhood/Community
    Edmiston Industrial
  • Postal Code
    T5S 1P2

Additional Details

  • Property Class
    Industrial
  • Last Updated
    9/2/2025 17:20
  • Property Class
    Industrial
  • Last Updated
    9/2/2025 17:20
  • Property Class
    Industrial
  • Last Updated
    9/2/2025 17:20

$1,150,000

11212 178 Street NW

Schedule Tour
Contact Agent

$5237/month
Est. Monthly Payment
$
$
%
Learn More

Mortgage values are calculated by Redman Technologies Inc based on values provided in the REALTOR® Association of Edmonton listing data feed.